TIPOLOGIA: Case ed Appartamenti STATO: buono-abitabile PREZZO: Trattativa riservata COMUNE: Bettona INDIRIZZO: Via dei monasteri
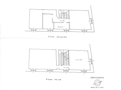
Bettona: Nel centro storico proponiamo in vendita abitazione di circa mq. 288 sviluppata su quattro livelli di cui tre piani fuori terra e un piano primo sottostrada. Al piano primo sottostrada troviamo un ampio fondo, al piano terra bagno, laboratorio, lavanderia, cantina e salone, al piano primo cucina e soggiorno, mentre al piano secondo 3 camere e un bagno.