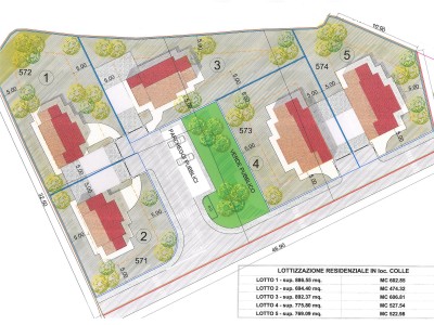
Colle fraz. di Bettona: vendesi terreni edificabili. Il nostro staff tecnico composto da Geometri, Ingegneri e Architetti, specializzati nella progettazione di lottizzazioni a carattere residenziale, industriale e commerciale, vi forniranno uno studio personalizzato e vi aiuteranno nello sviluppo urbanistico dell'intero comparto.