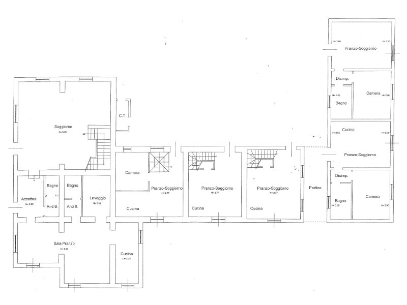
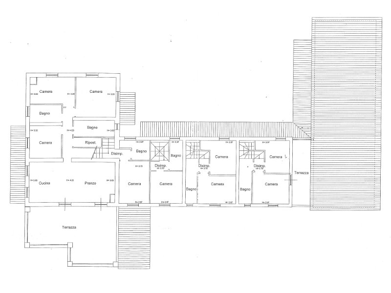
In contesto paesaggistico di pregio e in posizione dominante vendesi nei pressi del comune di Cannara, nelle vicinanze di Assisi e Bettona, in provincia di Perugia, villa plurifamiliare di nuova costruzione composta da: n.3 appartamenti sviluppati su due livelli e n.2 appartamenti al piano terra, annesso con 2 camere piu' servizi e abitazione padronale.
I progettisti Architetti, Geometri e Ingegneri del nostro studio tecnico, specializzati nella progettazione e ristrutturazione d'interni possono fornirvi diverse e personalizzate soluzioni architettoniche per ogni vostra esigenza abitativa.