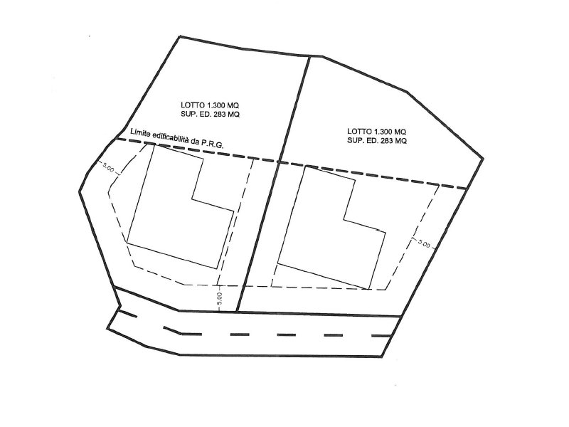
Vendesi nel comune di Bettona lotto di terreno di mq 3.400 con superficie edificabile di mq 566.
Ottima vista panoramica sulla vallata di Bettona e Assisi.
Il nostro staff tecnico composto da Geometri e Ingegneri specializzati nella progettazione e lottizzazione a carattere residenziale, industriale, e commerciale, forniranno uno studio personalizzato e vi aiuteranno nello sviluppo urbanistico dell'intero comparto