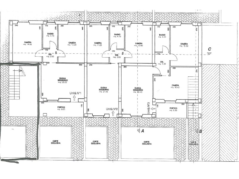
Vendesi a Cannara appartamenti di varie tipologie metrature
Rif. ven.86
TIPOLOGIA: Case ed Appartamenti PREZZO: €. 190.000 COMUNE: Cannara
Vendesi a Cannara nelle vicinanze di Assisi appartamenti di varie metrature e tipologie a partire da E 190.000.
Gli appartamenti sono completamente indipendenti su edificio plurifamiliare ancora da completare.
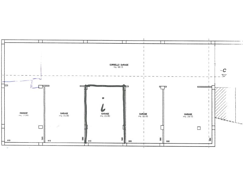
La richiesta è a partire da 1500 euro al mq.